Dermody Property Logo

11 Park Lake Road, Sparta, NJ 07871


Turn-key premier facility has thought of everything a preschool will need to succeed. Located in one of the most affluent communities in northern New Jersey with the access to many existing local businesses with more being built every day which provides a large pool of potential clientele.

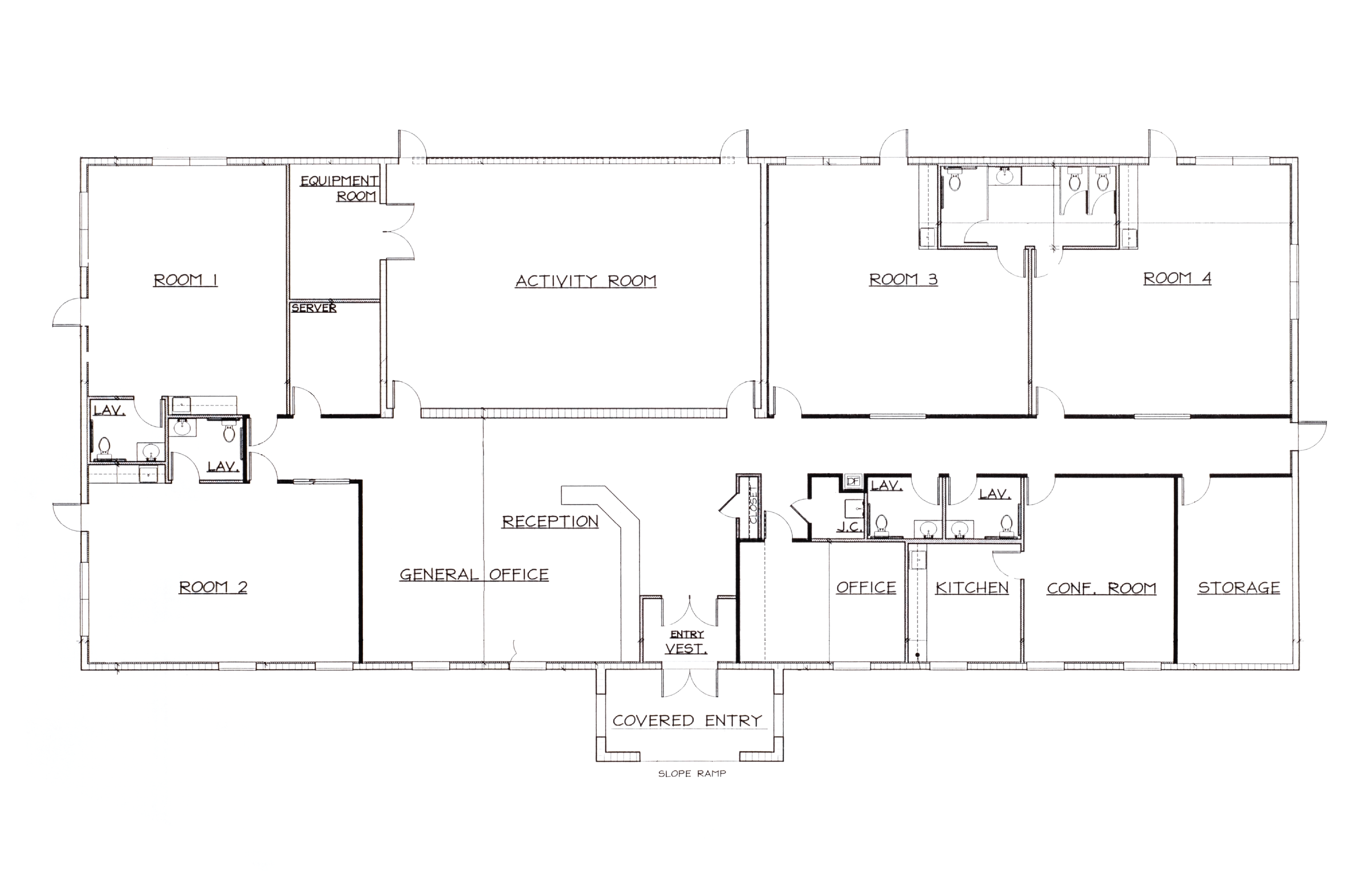
Blueprint of 11 Park Place

BUILDING FEATURES:

  • 7150 sq. ft.
  • Bathrooms attached to Each Classroom
  • Networked Camera System
  • Access Control On Exit Doors
  • Fire Alarm System
  • Natural Gas
  • AC Throughout
  • 38 Parking Places
  • 1 Handicap Parking Place
  • Immaculate Move In Condition
  • Gym Is A Large Indoor Play Area w/ 17’ Ceilings
  • Large Attractive Road Signage
  • Stunning Grounds And Landscaping
  • Walking Distance To Major Development Project
  • Ample Storage
  • Septic / Town Water
  • Year Built: 2007
  • Lot 6, Block 16003
Exterior - Front
Park Lake inside

Dermody Property Logo

CONTACT